walker_Walker Logo
5
Projects
Services
Commercial Electrical
Network Services
Our Story
Walker Legacy & Milestones
Leadership
Safety
Awards
Community
The Walker Way
Careers
Opportunities
Benefits
Training
Culture
Locations
Media
Facebook
Instagram
< projects home
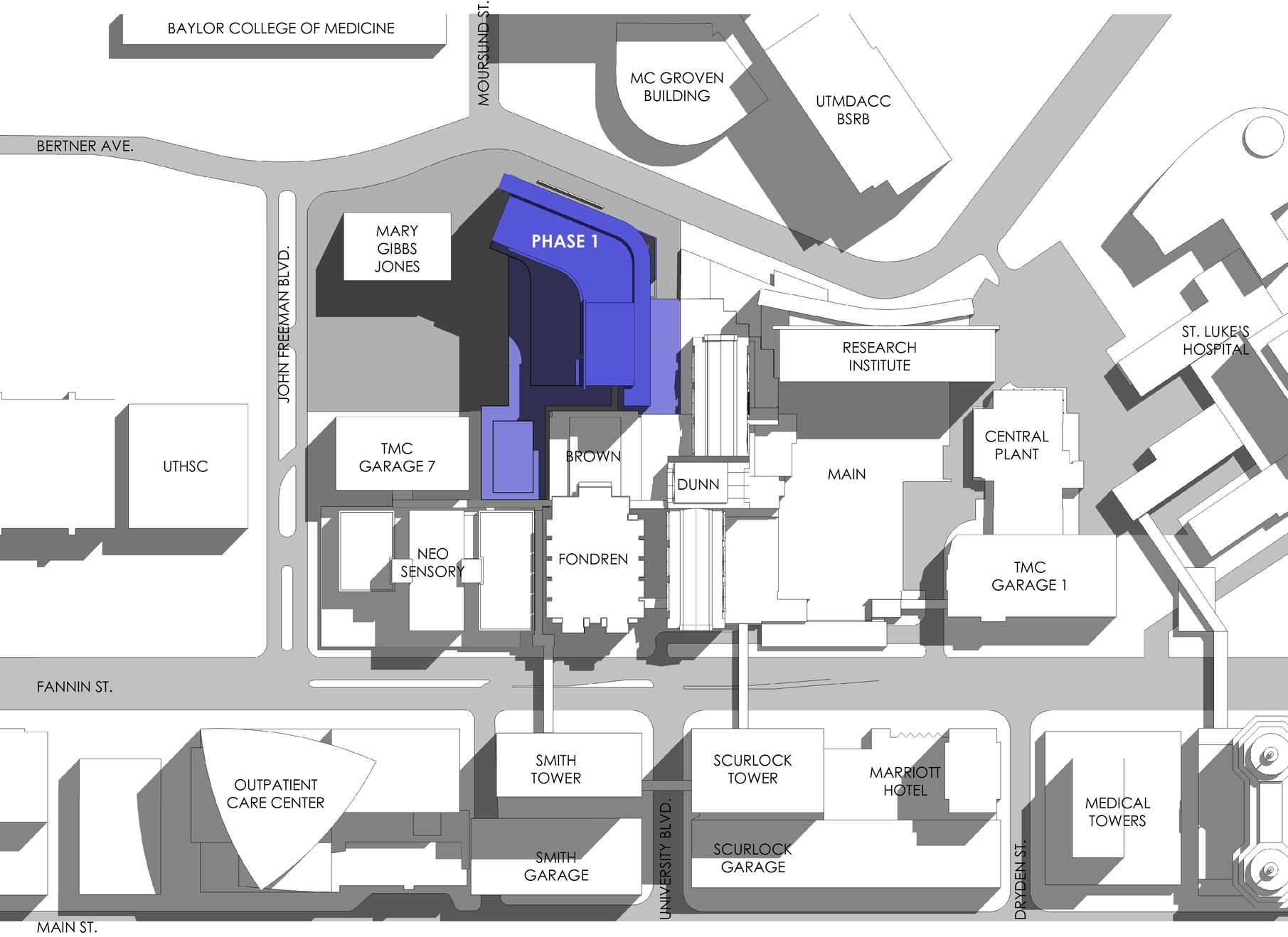
Houston Methodist Hospital - North Campus Expansion - Network Services
Services
Commercial Electrical
Network Services
Our Story
Walker Legacy
Leadership
Safety
Awards
Community
The Walker Way
Careers
Opportunities
Benefits
Training
Culture
Projects
Locations
Service Request Forms
Network Service Request
Electrical Service Requests
Emergency Contact
(800) 834-6729
Contact Us
© 2026 Walker Engineering, Inc.
All rights reserved
X
Contact Us
Name
Email
Location
Dallas/Fort Worth
Houston
San Antonio
Austin
Nature of Your Contact Request
Network Services / AV / Security Project Inquiries
Electrical Project Inquiries
Website Related Inquires
Career Related Inquiries
Message
spam
What is 3+1?
Send Form